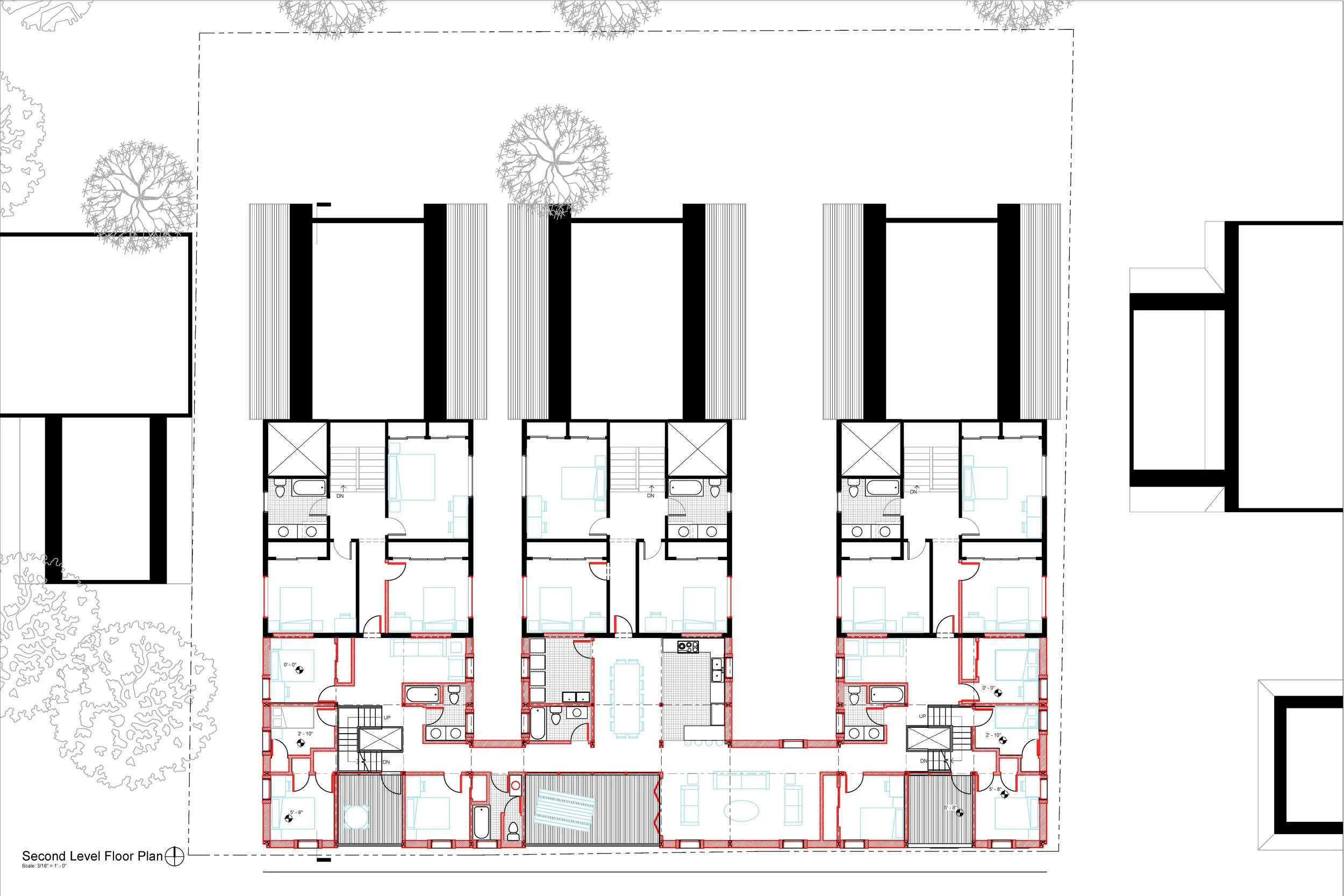
Extended Family Home No. 2

The Extended Family Home: A New American Suburban Type
A Thesis presented at the Princeton School of Architecture

Project Data

Date: 2022
Location: Skokie, IL
Type: Residential Addition
Status: Proposed
Advisors: Paul Lewis, Liz Diller, Sylvia Lavin
Special Thanks: Ian Ting, Marie Testa

Previous
Previous

Extended Family Home Conversion- Sterling Heights

Next
Next

Detroit Land Bank Semi-Modular Type Development